Project
-
THE ADAPTIVEPORT
Year
-
2023
Category
-
Adaptive Urban Infrastructure
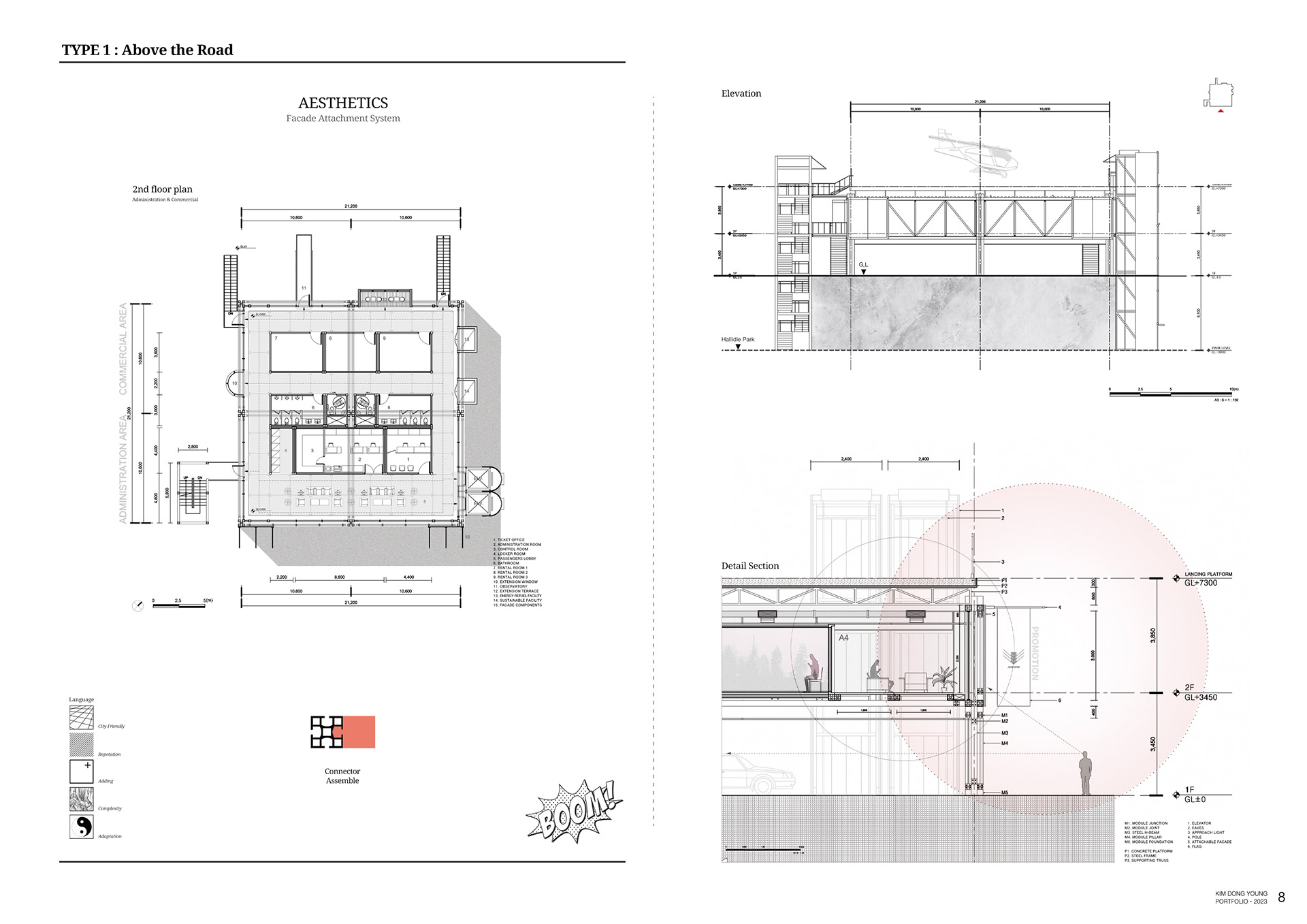
UAM-based Architectural Typology
The Adaptiveport explores the future of urban air mobility infrastructure through modular, drone-based landing facilities.
Designed to adapt to existing buildings, urban density, and evolving public needs, these ports merge utility with architectural value.
The project proposes a scalable network across San Francisco, integrating technology, community, and urban design.
It envisions a new typology where function, form, and adaptability converge to shape the cities of tomorrow.
-
THE ADAPTIVEPORT
Year
-
2023
Category
-
Adaptive Urban Infrastructure
UAM-based Architectural Typology
The Adaptiveport explores the future of urban air mobility infrastructure through modular, drone-based landing facilities.
Designed to adapt to existing buildings, urban density, and evolving public needs, these ports merge utility with architectural value.
The project proposes a scalable network across San Francisco, integrating technology, community, and urban design.
It envisions a new typology where function, form, and adaptability converge to shape the cities of tomorrow.